Bazénové dná
Dno s ponorom
Veľký spád a miesta s hlbším ponorom pripomínajú správne športové bazény. Takto vyhĺbené dno bazénov sa hlavne odporúča pre skoky do vody a športové plávanie.
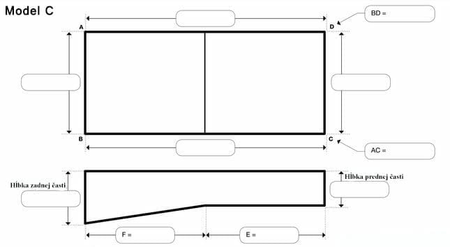
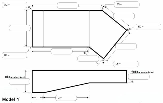
Fóliu vám bude vyrobená na mieru podľa vášho podlahového modelu.
- (podľa predpísanej hĺbky)
- Ploché dno s bezpečnostnou úrovňou: fólia na mieru
- Dno v ponornom bazéne: fólia na mieru
Pre výrobu štandardných fólii (klenuté dno) musia byť dodržané určité hĺbky v závislosti od rozmerov bazéna. Maximálna hĺbka v hlbokom bazéne sa vypočíta takto: 1/2 šírka x 0,30 a viac 1,10 m.
Bezpečnostná úroveň
Nazývaná aj “Safety Ledge”. Bezpečnostná úroveň je 1,10 m pod kamenným okrajom bazéna. Po tom môžete pohodlne chodiť pozdĺž okrajov bazéna, bez toho, aby ste rušili osobu plávajúcu v bazéne.
Tu si môžete oddýchnuť, alebo dokonca sa v pokoji porozprávať. Táto úroveň poskytuje dodatočnú bezpečnosť pre deti, pretože sa môžu ľahko dostať k okraju bazéna.































